
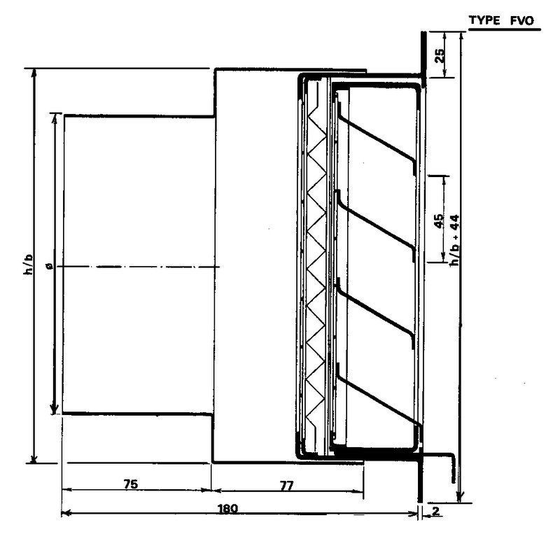
Wetterschutzgitter Type -V- mit hintergebauter Filtereinheit und Rundrohranschluss
Type -FV-O -
- aus seewasserbeständigem Aluminium (Al Mg³), mit hinter gebautem, verzinkten Vogelschutz,
Frontrahmen 25 mm, ungebohrt - aus verzinktem Stahlblech, mit hintergebautem, verzinkten Vogelschutz, Frontrahmen 25 mm ungebohrt
- aus rostfreiem Stahlblech (1.4571 / 1.4301), mit hintergebautem, rostfreien Vogelschutz aus V2A (1.4301)
Frontrahmen 25 mm, ungebohrt - aus 2 mm Kupferblech, mit hinter gebautem Vogelschutz V2A (1.4301), Frontrahmen 25 mm, ungebohrt
___________________________________________________________________________________________________________________________________________
Weather protection grille Typ -V- with back-mounted filter unit and round tube connection
Typ -FV-O -
- made of seawater-resistant aluminum (Al Mg³), with behind-built, galvanized bird protection, front frame 25 mm, undrilled
- made of galvanized sheet steel, with behind-built, galvanized bird protection, front frame 25 mm undrilled
- made of stainless steel sheet (1.4571 / 1.4301), with back-mounted, rustproof bird protection made of V2A (1.4301)
front frame 25 mm, undrilled - made of 2 mm copper sheet, with behind-built bird protection V2A (1.4301), front frame 25 mm, undrilled
